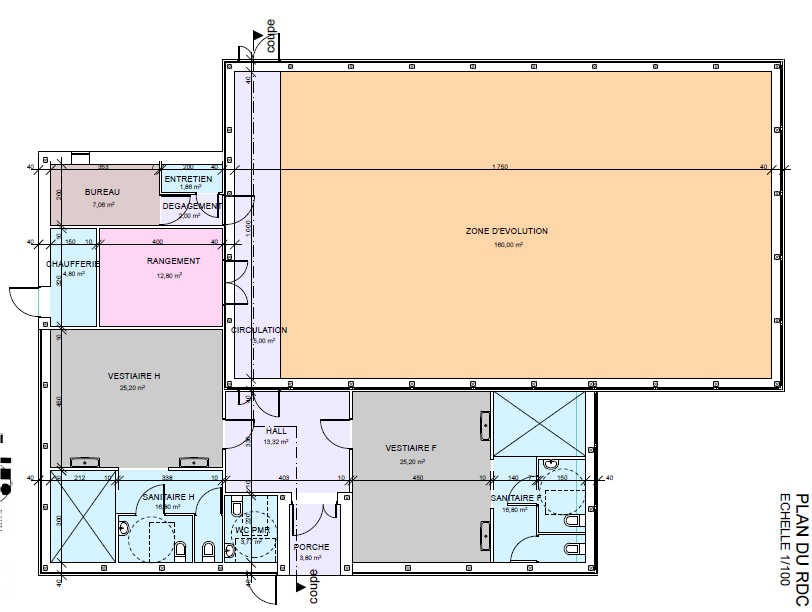
Construction d’une salle de sport au collège « dronne double » à Saint Aulaye (24).
Montant des travaux H.T: 350 000€
Maître d’ouvrage: conseil général de la Dordogne
Projet suivi par: Architecte Hugues Delage
Construction d’une salle de sport au collège « dronne double » à Saint Aulaye (24).
Montant des travaux H.T: 350 000€
Maître d’ouvrage: conseil général de la Dordogne
Projet suivi par: Architecte Hugues Delage